Dit nieuwbouwproject, Residentie Molendijkhof, gelegen in het rustige Borsbeke (Herzele), biedt een ideale locatie langs de provincieweg, die een uitstekende verbinding vormt tussen Aalst en Zottegem. De vlotte bereikbaarheid van de E40 en de nabijheid van het treinstation "Terhagen" maken deze locatie bijzonder geschikt voor wie snel toegang wil tot andere steden. Ook de busverbindingen in de omgeving zorgen voor extra mobiliteit. Winkels, scholen en andere voorzieningen bevinden zich in de ruime omgeving, waardoor dit project zich perfect leent voor wie centraal wil wonen, met alle nodige faciliteiten binnen handbereik.
Residentie Molendijkhof is een moderne en duurzame ontwikkeling, met aandacht voor energie-efficiëntie. Het streven is om BEN (Bijna Energie Neutraal) appartementen aan te bieden, met een focus op het gebruik van hernieuwbare energie. De duplexappartementen zijn beschikbaar met 2 of 3 slaapkamers en beschikken over zowel een terras aan de voorzijde als aan de achterzijde van het gebouw. De binnenafwerking van de appartementen is zorgvuldig gekozen, met oog voor zon- en lichtinval, wat zorgt voor een aangename en comfortabele woonervaring. Dit is de ideale plek voor wie op zoek is naar een rustige, maar moderne woonomgeving waarin ontspanning en comfort hand in hand gaan.
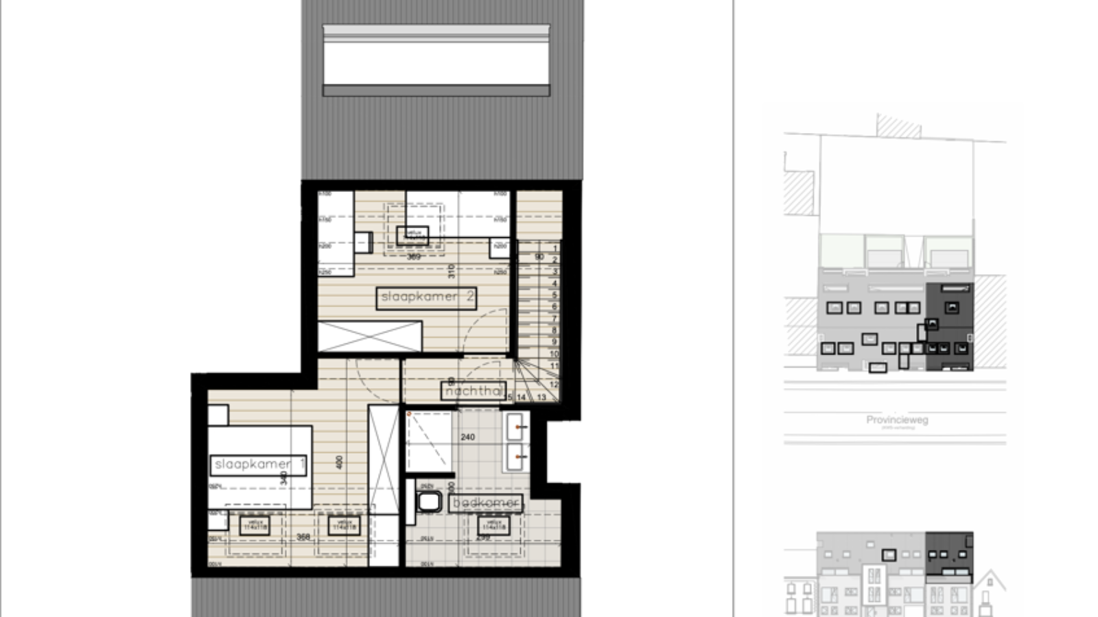
Dit duplex appartement met oppervlakte van 110 m² beschikt over een ruime leefruimte met open keuken, twee bergingen, een bureel en een apart toilet. Er zijn twee slaapkamers en de badkamer is voorzien van een inloopdouche. Daarnaast biedt het appartement twee terrassen, waarvan het grootste terras een zuid-oosten oriëntatie heeft. Bij het appartement hoort een afgesloten garagebox van 19 m² en een aparte fietsenstalling, waar u veilig uw fietsen kan opbergen. Beschikbaar bij oplevering. Mogelijkheid aankoop 6% btw.
Voor meer informatie of een bezoek kan u contact nemen via het contactformulier of via 053 84 89 80.
Residentie Molendijkhof is een moderne en duurzame ontwikkeling, met aandacht voor energie-efficiëntie. Het streven is om BEN (Bijna Energie Neutraal) appartementen aan te bieden, met een focus op het gebruik van hernieuwbare energie. De duplexappartementen zijn beschikbaar met 2 of 3 slaapkamers en beschikken over zowel een terras aan de voorzijde als aan de achterzijde van het gebouw. De binnenafwerking van de appartementen is zorgvuldig gekozen, met oog voor zon- en lichtinval, wat zorgt voor een aangename en comfortabele woonervaring. Dit is de ideale plek voor wie op zoek is naar een rustige, maar moderne woonomgeving waarin ontspanning en comfort hand in hand gaan.
Dit duplex appartement met oppervlakte van 110 m² beschikt over een ruime leefruimte met open keuken, twee bergingen, een bureel en een apart toilet. Er zijn twee slaapkamers en de badkamer is voorzien van een inloopdouche. Daarnaast biedt het appartement twee terrassen, waarvan het grootste terras een zuid-oosten oriëntatie heeft. Bij het appartement hoort een afgesloten garagebox van 19 m² en een aparte fietsenstalling, waar u veilig uw fietsen kan opbergen. Beschikbaar bij oplevering. Mogelijkheid aankoop 6% btw.
Voor meer informatie of een bezoek kan u contact nemen via het contactformulier of via 053 84 89 80.
-
2
-
1
-
✓
-
110 m²
-
817 m²
-
Gebouw
Bouwjaar 2025 Aantal garages Geventileerde ruimte -
Basisuitrusting
Keuken Lift Dubbele beglazing Type verwarming warmtepomp Type lift personenlift Keuken - type geïnstalleerd -
Diverse
Wasplaats -
In cijfers
Slaapkamer 1 13 Slaapkamer 2 11 Terras - aantal 2 -
Buitenkant
Zwembad -
Lasten & opbrengst
Onder btw stelsel -
Juridisch
Servitude Terrein - bestemming woongebied -
Technische uitrusting
Type schrijnwerkerij pvc -
Naam, Categorie & Ligging
Xy coordinaten - x 50.9037887 Xy coordinaten - y 3.888967899999999 -
Omgeving
Overstromingsrisico 2023 Klasse A (geen kans) G-score A P-score A